تمثل قرية أوجامي رأس الحكمة مشروعًا سياحيًا متكاملًا على ساحل البحر الأبيض المتوسط حيث يجمع بين الفخامة في التصميم والموقع المتميز في واحدة من أجمل مناطق الساحل الشمالي.
جاء مشروع Ogami North Coast ليقدم مفهومًا جديدًا للقرى الساحلية يعتمد على دمج المساحات الخضراء الواسعة مع الإطلالات المباشرة على البحر، مما يمنح السكان تجربة معيشية راقية وسط طبيعة خلابة.
يضم المشروع مجموعة متنوعة من الوحدات المصيفية من شاليهات وفيلات بتصميمات معمارية عصرية تراعي الخصوصية وتحقق أقصى استفادة من الموقع البحري.
اهتم المطور بتوفير بنية تحتية قوية ومجموعة من الخدمات الترفيهية مثل الشواطئ الخاصة وحمامات السباحة والمناطق التجارية والترفيهية.
اختيار موقع Ogami Ras El Hekma جاء بعناية ليضمن سهولة الوصول من مختلف المدن الرئيسية إضافة إلى قربه من أهم المعالم السياحية بالساحل الشمالي مما يجعل أوجامي رأس الحكمة وجهة مثالية للباحثين عن الراحة والاستثمار في الوقت نفسه.
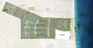
موقع أوجامي الساحل الشمالي

تقع قرية أوجامي رأس الحكمة في واحدة من أكثر مناطق الساحل الشمالي تميزًا حيث تجمع بين جمال الطبيعة وسهولة الوصول إلى أهم المحاور الحيوية.
اختارت الشركة المطورة موقع المشروع بعناية ليكون بالقرب من الطرق الرئيسية التي تربط الساحل الشمالي بالقاهرة و المدن الكبرى مما يسهل على السكان والزوار الوصول إلى القرية دون عناء.
يمتاز موقع Ogami North Coast بقربه من أبرز المناطق السياحية والخدمية التي تشهد إقبالًا متزايدًاإضافة إلى إطلالته المباشرة على البحر التي تمنح جميع الوحدات إطلالات طبيعية خلابة.
إن موقع Ogami Ras El Hekma يجعله خيارًا مثاليًا للراغبين في امتلاك وحدة صيفية أو استثمارية في منطقة تشهد نموًا سريعًا وزيادة في القيمة العقارية.
هذا الموقع الاستراتيجي يجعل أوجامي رأس الحكمة وجهة جذابة سواء لقضاء العطلات أو للاستثمار طويل الأجل في واحدة من أرقى مناطق الساحل الشمالي.
الأماكن القريبة من Ogami Ras El Hekma
- الطريق الدولي الساحلي يبعد حوالي 5 دقائق فقط عن موقع القرية
- مدينة العلمين الجديدة تقع على مسافة 25 دقيقة تقريبًا
- منطقة رأس الحكمة الرئيسية على بعد 10 دقائق فقط
- قرى سياحية مميزة مثل فوكا باي وجلالة باي يمكن الوصول إليها خلال 15 دقيقة
- محطات الوقود والخدمات الأساسية على بعد 7 دقائق تقريبًا
- المراكز الطبية والعيادات القريبة تستغرق 15 دقيقة للوصول
- طريق وادي النطرون والعلمين يمكن الوصول إليه خلال 20 دقيقة
تصميم قرية أوجامي سوديك الساحل الشمالي

تم تصميم قرية أوجامي رأس الحكمة وفق رؤية عصرية تهدف إلى خلق مجتمع سياحي متكامل يجمع بين الفخامة والطبيعة الساحلية الخلابة.
قامت شركة سوديك للتطوير العقاري على استغلال الموقع البحري الفريد من خلال توزيع الوحدات على مستويات متدرجة تتيح إطلالات بانورامية مباشرة على البحر لجميع الوحدات تقريبًا.
اعتمد التصميم على المساحات الخضراء الواسعة التي تغطي نسبة كبيرة من المشروع مما يوفر بيئة طبيعية هادئة تعزز من إحساس الخصوصية والراحة.
تم تخصيص مسارات للمشاة و الدراجات بعيدًا عن حركة السيارات لتوفير أقصى درجات الأمان والراحة داخل القرية.
تشمل التصميمات المعمارية أنماطًا حديثة مستوحاة من الطراز المتوسطي الذي يجمع بين البساطة والأناقة مع استخدام مواد بناء عالية الجودة تضمن استدامة المباني ومقاومتها للعوامل البيئية الساحلية.
إضافة إلى ذلك توفير مناطق خدمات مركزية تشمل حمامات سباحة متعددة الأشكال والأحجام، ومناطق ترفيهية، ومراكز تجارية لخدمة السكان والزوار.
المساحات في قرية أوجامي رأس الحكمة

قامت شركة سوديك للتطوير العقاري لقرية أوجامي رأس الحكمة تنوعًا مدروسًا في المساحات لتلبية احتياجات مختلف العملاء سواء الراغبين في امتلاك وحدة مصيفية صغيرة أو فيلا مستقلة واسعة وقد حرصت الشركة علي أن يتم استلام الوحدة كاملة التشطيب
تم تقسيم المشروع بطريقة تسمح باستغلال المساحات بأعلى كفاءة مع مرونة في تصميم الوحدات لتناسب الاستخدام العائلي أو الاستثماري.
تشمل المساحات شاليهات بمساحات عملية تمنح أصحابها خصوصية كاملة وإطلالات مميزة على البحر أو المساحات الخضراء إلى جانب وحدات دوبلكس وفيلات منفصلة صُممت لتوفير رفاهية أعلى ومساحات خارجية واسعة مثل الحدائق والتراسات.
تم توزيع الوحدات داخل المشروع بما يضمن سهولة الحركة والوصول إلى جميع الخدمات والمرافق الترفيهية دون تكدس مع مراعاة توفير مناطق مفتوحة وممشى شاطئي يسمح بالاستمتاع بالطبيعة البحرية على مدار العام.
تبدأ مساحات الوحدات في Ogami Ras El Hekma رأس الحكمة من 223 متر مربع، وتتمتع بتصميمات راقية وإطلالة فريدة، يقدم المشروع وحدات تاون هاوس وتوين هاوس وفلل المستقلة بمساحات كالآتي:
التاون هاوس: تبدأ المساحات في قرية أوجامي رأس الحكمة من 223 متر مربع.
التوين هاوس: تبدأ من 265 متر مربع.
الفيلات: تتراوح المساحات في منتجع أوجامي رأس الحكمة الساحل الشمالي من 250 متر مربع حتى 750 متر مربع.
الخدمات في قرية أوجامي رأس الحكمة

تم تجهيز قرية أوجامي رأس الحكمة بمجموعة متكاملة من الخدمات التي تضمن تجربة إقامة مريحة ومتكاملة تلبي مختلف احتياجات السكان والزوار
اهتمت شركة سوديك للتطوير العقاري على توفير مرافق ترفيهية وخدمية متطورة تجعل من المشروع وجهة مثالية للإقامة والاستثمار في آن واحد.
أبرز خدمات Ogami North Coast
- شاطئ خاص يتميز برمال بيضاء ناعمة ومياه صافية
- حمامات سباحة متنوعة موزعة على أنحاء المشروع لتناسب جميع الأعمار
- منطقة مخصصة للألعاب المائية (أكوا بارك) توفر تجربة ممتعة للعائلات
- مسجد بتصميم معماري مميز يخدم جميع رواد المشروع
- ملاعب رياضية متعددة الأغراض لممارسة مختلف الأنشطة
- ممشى سياحي يطل مباشرة على البحر مع مسارات للمشاة والدراجات
- مركز تجاري يضم محلات ومطاعم وكافيهات عالمية ومحلية
- خدمات أمن وحراسة على مدار الساعة مدعومة بكاميرات مراقبة حديثة
- مراكز طبية مجهزة لتقديم الرعاية الصحية الطارئة
- جراجات سيارات منظمة تضمن سهولة الحركة داخل القرية
أسعار أوجامي سوديك الساحل الشمالي

قامت شركة سوديك للتطوير العقاري بوضع اسعار مناسبة للمستثمارين في قرية أوجامي رأس الحكمة سياسة تسعير مرنة تناسب مختلف شرائح العملاء حيث روعي في تحديد الأسعار الموقع الاستراتيجي للمشروع وجودة التصميمات المعمارية والخدمات المتكاملة التي يوفرها.
تقدم الأسعار ميزة تنافسية تجعل القرية خيارًا مناسبًا سواء للراغبين في امتلاك وحدة مصيفية للاستخدام الشخصي أو للاستثمار طويل الأجل خاصة مع الإقبال المتزايد على منطقة رأس الحكمة كوجهة سياحية مميزة.
يتميز المشروع أيضًا بالجمع بين القيمة العالية للوحدات والتكلفة الاستثمارية المناسبة مقارنة بالمشروعات المحيطة، مما يعزز من جدواه الاستثمارية على المدى القريب والبعيد.
خيارات متعددة تناسب كل احتياجاتك:
الفيلات مطلة علي البحر
- دور واحد – 5 غرف نوم: من 190 إلى 216.6 مليون جنيه
- دور واحد – 4 غرف نوم: 156 مليون جنيه
- 4 غرف نوم : من 70.9 إلى 95 مليون جنيه
- Bayview (3 غرف نوم): من 52.3 إلى 93.6 مليون جنيه
- تاون (4 غرف نوم): من 45.8 إلى 59.1 مليون جنيه
- التوين هاوس (3 غرف نوم): من 35.9 إلى 48.1 مليون جنيه
- التاون هاوس (3 غرف نوم): من 33.7 إلى 41.6 مليون جنيه
أنظمة السداد في قرية أوجامي رأس الحكمة
حرصت شركة سوديك للتطوير العقاري لمشروع قرية أوجامي رأس الحكمة على طرح أنظمة سداد مرنة تتناسب مع قدرات العملاء المختلفة مما يتيح لهم امتلاك وحداتهم دون أي ضغوط مالية كبيرة.
تشمل أنظمة السداد مقدمات حجز ميسرة مع إمكانية تقسيط باقي المبلغ على فترات طويلة
يتيح للمستثمر فرصة حقيقية للحصول على وحدة داخل المشروع بسهولة سواء بغرض الإقامة أو الاستثمار.
هذه المرونة في الدفع تعكس حرص الشركة على دعم عملائها وتمكينهم من الاستفادة من مزايا المشروع الفريدة دون عوائق تمويلية.
النظام الأول:
5% مقدم عند التعاقد
5% بعد 6 أشهر
5% بعد 12 شهر
تقسيط باقي المبلغ على مدة تصل إلى 7 سنوات
النظام الثاني:
5% مقدم عند التعاقد
2.5% بعد 6 أشهر
2.5% بعد 12 شهر
تقسيط باقي المبلغ على مدة تصل إلى 8 سنوات
خطط مرنة تناسب مختلف الاحتياجات وتضمن سهولة الدفع مع الحفاظ على قيمة الاستثمار.
برجاء العلم أن الأسعار في حالة تغير مستمر وذلك علي حسب موقع ونوع ومساحة الوحدة
أهمية الاستثمار في قرية أوجامي رأس الحكمة
يعد الاستثمار في قرية أوجامي رأس الحكمة فرصة مميزة نظرًا للموقع الفريد للمشروع في واحدة من أكثر مناطق الساحل الشمالي نموًا و إقبالًا من قبل المستثمرين والعملاء الباحثين عن وجهات سياحية متكاملة.
يتمتع المشروع بتصميم عصري وخدمات شاملة تلبي جميع احتياجات السكان والزوار، مما يعزز من قيمته السوقية بشكل مستمر.
كما أن قرب القرية من الطرق الرئيسية والمدن الجديدة مثل العلمين الجديدة يجعلها وجهة جذابة سواء للاستخدام الشخصي أو لتحقيق عوائد استثمارية مرتفعة عبر إعادة البيع أو التأجير الموسمي.
يتزابد الطلب على وحدات رأس الحكمة مما يسهم في تعزيز قيمة الوحدات بمرور الوقت ما يجعل الاستثمار في أوجامي رأس الحكمة خيارًا آمنًا ومربحًا على المدى الطويل.