تعد قرية جون سوديك رأس الحكمة من أهم المشروعات السياحية التي تم تطويرها في الساحل الشمالي لتقديم تجربة معيشية فاخرة تجمع بين التصميم المعماري الحديث والطبيعة الساحلية الساحرة
يعكس المشروع رؤية شركة سوديك في إنشاء مجتمعات سكنية وسياحية متكاملة تعتمد على التخطيط المدروس والبنية التحتية المتطورة بما يضمن بيئة مثالية لقضاء العطلات والاستثمار في الوقت ذاته
يمتد June Ras El Hekma على مساحة واسعة تتيح تنوعا في أنماط الوحدات من شاليهات بمساحات مرنة إلى فيلات ذات خصوصية عالية وكلها صممت لتحقيق أفضل استفادة من الإطلالات الطبيعية على البحر والمساحات الخضراء المحيطة
يعزز June North Coast مفهوم الحياة العصرية من خلال توفير مساحات مخصصة للترفيه ومناطق تجارية وخدمات متكاملة تضمن للسكان والزوار أعلى درجات الراحة والرفاهية
تؤكد شركة سوديك من خلال هذا المشروع مكانتها كواحدة من الشركات الرائدة في تطوير مشروعات سياحية متكاملة حيث تقدم وحدات ذات قيمة استثمارية مرتفعة في واحدة من أكثر الوجهات الساحلية طلبا ونموا في مصر
موقع قرية جون سوديك رأس الحكمة

تم اختيار موقع قرية جون سوديك رأس الحكمة التي تعد واحدة من أجمل مناطق الساحل الشمالي وأكثرها تميزا حيث يجمع الموقع بين القرب من شبكة الطرق الرئيسية والإطلالة المباشرة على البحر الأبيض المتوسط مما يمنح السكان والزوار سهولة الوصول إلى المشروع من مختلف المدن المصرية
يعد هذا الموقع من أبرز نقاط القوة التي تجعل الاستثمار في جون سوديك الساحل الشمالي خيارا آمنا ومميزا سواء للإقامة أو للاستثمار العقاري
الأماكن القريبة من قرية جون سوديك الساحل الشمالي
- الطريق الساحلي الدولي على بعد 5 دقائق فقط من القرية
- مدينة العلمين الجديدة تبعد 25 دقيقة تقريبا
- منطقة رأس الحكمة الرئيسية على مسافة 10 دقائق
- قرى سياحية كبرى مثل فوكا باي و جلالة باي يمكن الوصول إليها خلال 15 دقيقة
- مراكز خدمية وتجارية وترفيهية تبعد 20 دقيقة عن القرية
- محطات وقود وخدمات أساسية تقع على بعد 7 دقائق
- مراكز طبية وعيادات خاصة يمكن الوصول إليها خلال 15 دقيقة
- طريق وادي النطرون العلمين على بعد 20 دقيقة فقط
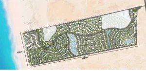
تصميم June Ras El Hekma

تم تصميم قرية جون سوديك رأس الحكمة ليعكس مفهوم المجتمعات الساحلية الفاخرة حيث تمت مراعاة توزيع الوحدات على مستويات متدرجة تضمن لجميع الملاك إطلالات مميزة على البحر أو المساحات الخضراء المفتوحة
يعتمد التصميم على العمارة الحديثة التي تمزج بين الأناقة والعملية مع مساحات خضراء واسعة تغطي نسبة كبيرة من المشروع إضافة إلى ممرات للمشاة ومسارات للدراجات بعيدا عن حركة السيارات لتحقيق أعلى درجات الأمان والراحة
تم تخصيص مساحات واسعة للخدمات الترفيهية مثل حمامات السباحة والمناطق المائية إلى جانب مناطق تجارية ومطاعم وكافيهات تعمل على مدار العام مما يجعل المشروع مجتمعا متكامل الخدمات
كما اعتمدت شركة سوديك المطورة على خامات بناء عالية الجودة وأساليب حديثة في العزل ومقاومة العوامل البيئية الساحلية لضمان استدامة المشروع والحفاظ على مظهره العصري لسنوات طويلة
المساحات في June North Coast

حرصت شركة سوديك لقرية جون سوديك رأس الحكمة على تقديم تنوع واسع في المساحات لتلبية احتياجات العملاء المختلفة
- تاون هاوس: حيث يبدأ من 196 متر مربع.
- الفلل: تبدأ من 220 متر مربع.
فيلات تطل على الشاطئ وأخرى على البحر مباشرة تبدأ مساحتها من 278 مترًا. - الفلل المتوسطة: تبدأ من 280 متر مربع.
- الفلل الكبيرة: وهي الأكبر تأتي مساحتها من 327 متر مربع.
الخدمات في قرية جون سوديك رأس الحكمة

حرصت الشركة المطورة لقرية جون سوديك رأس الحكمة على توفير مجموعة شاملة من الخدمات التي تجعل من المشروع مجتمعًا متكاملًا يلبي جميع احتياجات السكان والزوار سواء للإقامة الدائمة أو العطلات الموسمية.
- شاطئ خاص يتميز برمال بيضاء ناعمة ومياه صافية لإطلالات مباشرة على البحر
- حمامات سباحة متنوعة موزعة على أنحاء القرية تشمل حمامات للأطفال وأخرى للبالغين
- منطقة ألعاب مائية أكوا بارك مجهزة بأحدث الألعاب الترفيهية المائية للعائلات والأطفال
- مسجد بتصميم معماري مميز يلبي احتياجات رواد القرية
- ملاعب رياضية متعددة تشمل كرة القدم والتنس وكرة السلة مع مسارات للجري وركوب الدراجات
- منطقة تجارية متكاملة تضم محلات متنوعة ومطاعم وكافيهات تقدم خيارات متعددة للسكان والزوار
- نظام أمني متكامل يشمل أفراد حراسة مدربين وكاميرات مراقبة على مدار الساعة
- مراكزطبية مجهزة لتقديم الرعاية الصحية العاجلة والخدمات الطبية الأساسية
- مواقف سيارات منظمة توفر سهولة الحركة والتنقل داخل المشروع
- مساحات خضراء وحدائق مفتوحة موزعة بين المباني لتحقيق أجواء طبيعية هادئة
الأسعار وأنظمة السداد June Ras El Hekma
قدمت الشركة المطورة لقرية جون سوديك رأس الحكمة مجموعة متنوعة من الوحدات بأسعار تناسب الفئات المختلفة
حيث تتوفر شاليهات بغرفتين سواء بالنموذج العادي أو الأرضي إضافة إلى شاليهات بثلاث غرف
البنتهاوس وكل منها يتميز بتصميم عصري يراعي خصوصية السكان ويوفر إطلالات مميزة على البحر أو المساحات الخضراء
حيث طرحت شركة سوديك شاليهات متعددة تتمثل في :
- شاليه 2 غرف : من 21.7 إلى 22.4 مليون جنيه
- شاليه 2 غرف (أرضي): من 24.2 إلى 25 مليون جنيه
- شاليه 3 غرف : من 23.6 إلى 26.3 مليون جنيه
- شاليه 3 غرف (أرضي): من 27.4 إلى 29.4 مليون جنيه
- شاليه 3 غرف (بنتهاوس): من 27.3 إلى 29.4 مليون جنيه
أنظمة الدفع و السداد
فجاءت مرنة للغاية حيث يمكن للعميل التعاقد بدفع 5% فقط كمقدم حجز يليها 5% أخرى بعد ستة أشهر و5% إضافية بعد مرور عام من التعاقد ثم يتم تقسيط باقي المبلغ على فترة تصل إلى 7 سنوات وهو ما يمنح العملاء فرصة شراء وحداتهم دون ضغوط مالية كبيرة مع إمكانية اختيار الوحدة التي تناسبهم بسهولة
برجاء العلم أن الأسعار في حالة تغير مستمر وذلك نظرا لموقع الوحدة ومساحتها
أهمية الاستثمار في قرية جون سوديك رأس الحكمة

يمثل الاستثمار في قرية جون سوديك رأس الحكمة فرصة مميزة بفضل الموقع الاستراتيجي للمشروع في واحدة من أجمل مناطق الساحل الشمالي وأكثرها تطورًا حيث يشهد الطلب على الوحدات السكنية والسياحية في رأس الحكمة نموًا متزايدًا مما يعزز من قيمة الاستثمار مع مرور الوقت
تصميم المشروع والخدمات المتكاملة التي يضمها مثل الشاطئ الخاص وحمامات السباحة المتعددة والمناطق التجارية والترفيهية تجعله وجهة جاذبة سواء للإقامة أو للإيجار الموسمي وهو ما يضمن عائدًا استثماريًا مرتفعًا للملاك
كما أن مرونة أنظمة السداد التي توفر مقدم منخفض وأقساط ممتدة لعدة سنوات تمنح المستثمرين فرصة امتلاك وحدات في مشروع قوي البنية التحتية ومكتمل الخدمات دون أعباء مالية كبيرة الأمر الذي يجعل جون سوديك الساحل الشمالي خيارًا مثاليًا للراغبين في استثمار آمن وناجح على المدى الطويل